السلام عليكم ورحمة الله وبركاتة
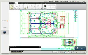
قد يواجهنا فى بعض الاوقات مشاكل فى الاوتوكاد ورغبنا فى فتح او التعديل على لوحة موجود لدينا بالفعل او كنا متواجديين امام جهاز غير مثبت علية البرنامج هذا الموقع يتيح لنا العمل على البرنامج على الشبكة بدون تحميل البرنامج باستخدام خدمات التطبيقات السحابية التى اصبحت الان منتشرة بقوة https://www.autocadws.com/ وايضا يوفر لنا اضافة على جوجل كروم لسهولة الوصول الى الموقع لتحميل الاضافة من هنافقط انت بحاجة الى عمل حساب على الموقع بكل سهولة من صفحة البداية اختار Create account
فيديو للتوضيح

.jpg)
.jpg)

0 التعليقات: